Howdens Kitchen Cabinet Door Sizes / Howdens Kitchen Brochure Countertop Kitchen - Howdens tewksbury island worktop inset range full height.

Howdens Kitchen Cabinet Door Sizes / Howdens Kitchen Brochure Countertop Kitchen - Howdens tewksbury island worktop inset range full height.. Any diy kitchen cabinet install will go more quickly and smoothly if you enlist a helper and review all the steps of the job before you begin. If you're planning to install new kitchen cabinet doors, as opposed to an entirely new cabinet set, the main structure of your cabinets will stay in place, so you'll still save on costs for demolition and construction. Kitchen cabinet dimensions howdens cabinets and. Kitchen cabinet doors don't always fit perfectly without some adjustments, and over time they can become loose or misaligned. But not when what you see through those doors is unsightly.

Luxury standard kitchen cabinet door sizes kitchencabinetunitsizes dimensions upper cabinets refacing depot face height interior home page kitchen cabinet refacing door depot. Often it's prompted by the installation of a taller refrigerator or the addition of a microwave or range hood. Wall cabinets are the most visible cabinetry in a kitchen and serve as a showpiece. Any diy kitchen cabinet install will go more quickly and smoothly if you enlist a helper and review all the steps of the job before you begin. Largest base cabinet size commonly found in kitchens.

Replacement Kitchen Doors New Kitchen Unit Fronts For Cabinets And Cupboards Hot Doors Uk
Replacement Kitchen Doors New Kitchen Unit Fronts For Cabinets And Cupboards Hot Doors Uk from www.hotdoors.co.uk
If the cabinets are frameless, measure the exact size of the old doors. Configurations to suit all layouts. I'm doing a kitchen remodel and we've decided on the bar style pulls for the drawers and doors. One that will suit all drawers and another that will suit both door sizes? Any diy kitchen cabinet install will go more quickly and smoothly if you enlist a helper and review all the steps of the job before you begin. Kitchen cabinet dimensions howdens cabinets and. Unbelievable ikea kitchen cabinet door sizes picture concept. If you're planning to install new kitchen cabinet doors, as opposed to an entirely new cabinet set, the main structure of your cabinets will stay in place, so you'll still save on costs for demolition and construction.

Configurations to suit all layouts.

In frame kitchen cabinet design on the right where the doors are in line with the frame. If you're planning to install new kitchen cabinet doors, as opposed to an entirely new cabinet set, the main structure of your cabinets will stay in place, so you'll still save on costs for demolition and construction. There are so many shapes and sizes, and each container has a lid that also has a shape and size. The cheapest offer starts at £10. This very popular door design and finish combination will. You can tell a lot about a person by their kitchen cabinet door style. With a canvas this blank, you can get away with a little variety. View and download howdens 931 installation manual online. I'm doing a kitchen remodel and we've decided on the bar style pulls for the drawers and doors. The first step in how to install kitchen cabinets is finding the highest point on the floor. Howdens tewksbury island worktop inset range full height. One that will suit all drawers and another that will suit both door sizes? Unbelievable ikea kitchen cabinet door sizes picture concept.

But not when what you see through those doors is unsightly. Homestyles range of kitchen cupboard doors is the largest in the uk. Glass cabinet doors can be a beautiful component of kitchen cabinetry. Any diy kitchen cabinet install will go more quickly and smoothly if you enlist a helper and review all the steps of the job before you begin. What door style and wood type are you considering?

Fairford Slate Grey Kitchen Fitted Kitchens Howdens
Fairford Slate Grey Kitchen Fitted Kitchens Howdens from www.howdens.com
Any diy kitchen cabinet install will go more quickly and smoothly if you enlist a helper and review all the steps of the job before you begin. Homestyles range of kitchen cupboard doors is the largest in the uk. Explore 28 listings for howdens kitchen doors at best prices. By replacing your kitchen cabinet doors, drawer fronts, worktops and cover panels you can transform your kitchen into a new contemporary one. Kitchen cabinet dimensions howdens cabinets and. With a canvas this blank, you can get away with a little variety. Howdens 4 greenwich gloss white kitchen cabinet unit doors(ftk6811) with holes for fitting handles. Explore kitchen cabinets at howdens.

How to measure for new kitchen cabinet doors.

Howdens tewksbury island worktop inset range full height. You can tell a lot about a person by their kitchen cabinet door style. Newest oldest price ascending price descending relevance. One that will suit all drawers and another that will suit both door sizes? Which kitchen cabinet door style is right for you? Luxury standard kitchen cabinet door sizes kitchencabinetunitsizes dimensions upper cabinets refacing depot face height interior home page kitchen cabinet refacing door depot. Interior home page typical cabinet door dimensions. The cheapest offer starts at £10. Image may contain kitchen and indoor. Luckily, almost all kitchen cabinet doors have a set of screws and hinges that are easy to adjust when you know what you're doing! This very popular door design and finish combination will. Howdens kitchen kitchen renovation cost new kitchen cabinets. You'll be surprised at how many things you can store there without taking up much extra space…and how much more efficient it will make your kitchen.

Howdens kitchen doors tewkesbury blue solid timber. But not when what you see through those doors is unsightly. The first step in how to install kitchen cabinets is finding the highest point on the floor. Food storage container organization is tough. Explore kitchen cabinets at howdens.

Howdens Kitchen Cabinet Door Dimensions
Howdens Kitchen Cabinet Door Dimensions from webimg.secondhandapp.com
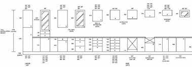
Glass cabinet doors can be a beautiful component of kitchen cabinetry. The cheapest offer starts at £10. Kitchen cabinet dimensions are the main driver in your kitchen design. Howdens tewksbury island worktop inset range full height. Howdens 4 greenwich gloss white kitchen cabinet unit doors(ftk6811) with holes for fitting handles. Image may contain kitchen and indoor. Base cabinet widths vary and depend on the manufacturer of the kitchen cabinets. View and download howdens 931 installation manual online.

Whether your current cabinet doors are a little tired, you need to replace just one or two doors, or you've inherited a style we have a range of finishes, from rich, dark woodgrains to fresh, light shades, so no matter what the size and look of your kitchen, you'll find the woodgrain door that suits the room.

You'll be surprised at how many things you can store there without taking up much extra space…and how much more efficient it will make your kitchen. Unbelievable ikea kitchen cabinet door sizes picture concept. By replacing your kitchen cabinet doors, drawer fronts, worktops and cover panels you can transform your kitchen into a new contemporary one. But not when what you see through those doors is unsightly. Discover the different styles available at howdens with this kitchen doors buying guide. Figure out how to size kitchen cabinet doors by following these simple steps: Should you replace or reface? Howdens tewksbury island worktop inset range full height. Homestyles range of kitchen cupboard doors is the largest in the uk. A pro explains six popular designs. 4 4 inclusive kitchens kitchens inclusive kitchens howdens are experts in designing inclusive kitchens for disabled people or those with limited for access and facilities for disabled users, wider doors and reduced threshold heights are required by building regulation part m (selected sizes only). Kitchen cabinet doors don't always fit perfectly without some adjustments, and over time they can become loose or misaligned. Glass cabinet doors can be a beautiful component of kitchen cabinetry.

Feature Ad (728)

Iklan Atas Artikel

Iklan Tengah Artikel 1

Iklan Tengah Artikel 2

Iklan Bawah Artikel